| City: | Hévíz |
| Price | 145 623 € |
| Lot size: | 1125 m2 |
In the western part of Hévíz, in a quiet and peaceful location, a 1125 m2 property with all utilities,
in a built-up area, with a south-facing courtyard,
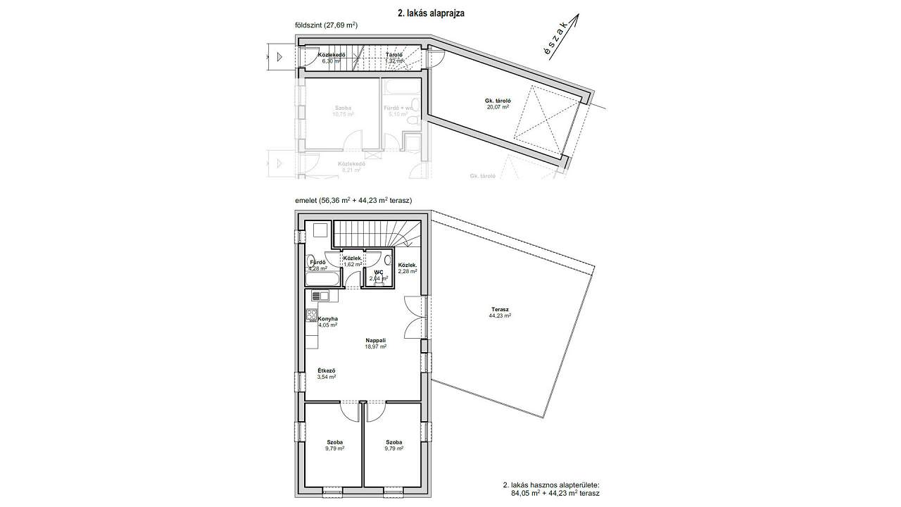
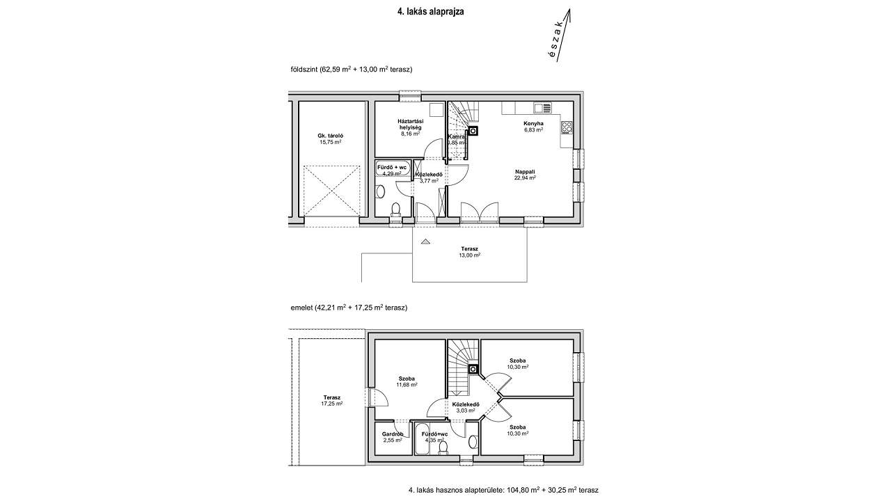
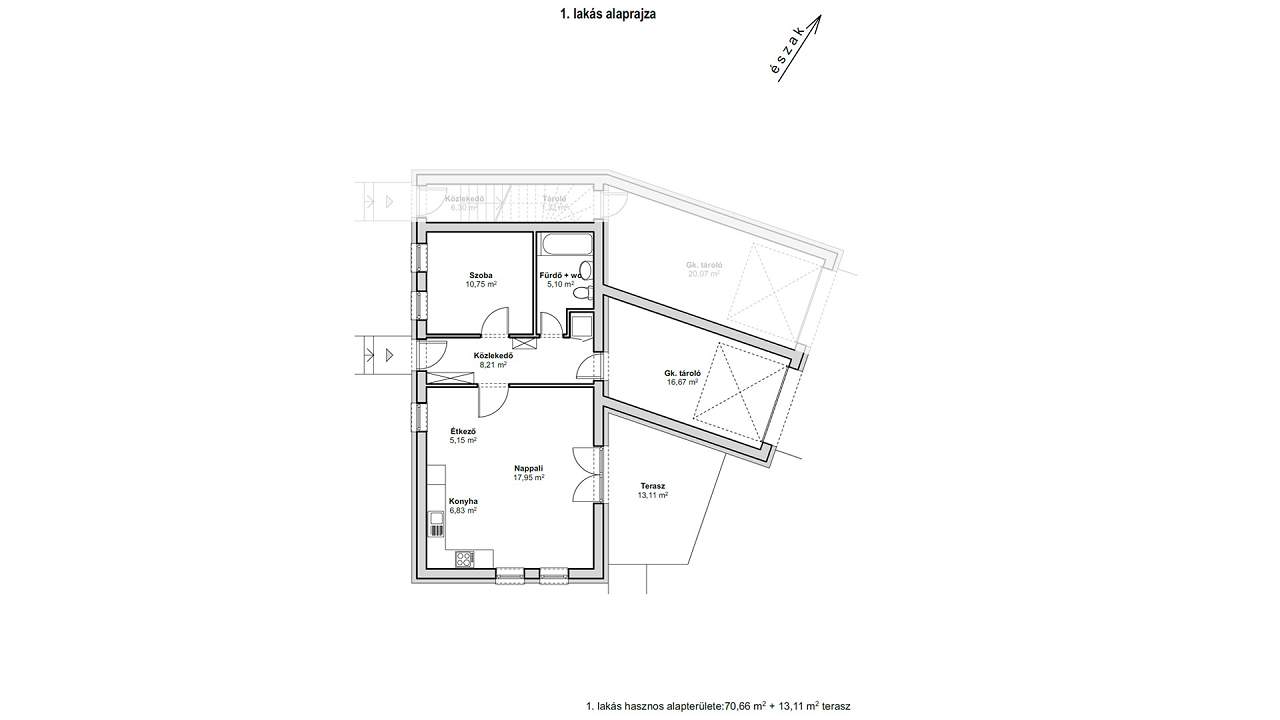
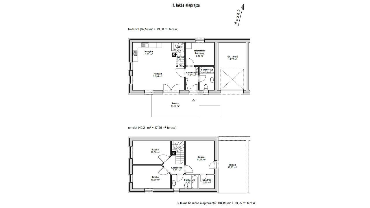
with building plans and visual designs in accordance with the HÉSZ (local building regulations) suitable for the construction of a 4-apartment condominium
! The planned apartments have separate entrances,
with garages, terraces and gardens belonging to the apartments, ranging from 1.5 rooms to 3
rooms with a living room.
in a built-up area, with a south-facing courtyard,
with building plans and visual designs in accordance with the HÉSZ (local building regulations) suitable for the construction of a 4-apartment condominium
! The planned apartments have separate entrances,
with garages, terraces and gardens belonging to the apartments, ranging from 1.5 rooms to 3
rooms with a living room.
Features
- Commercial properties
- Golf court nearby
- Hévíz property
- Shopping area nearby
- Thermal bath bearby
- Yacht Club nearby
Utilities
- Canalization connected
- Electricity connected
- Gas connected
- Water pipeline connected
Extras
- Other parking
From Lake Balaton:
7,2 km, 11 min.
